最新资讯
联系我们
固话:0572-8830777
传真:0572-8830778
网址:zhongyikj.cc
邮箱:kitchenware@zhongyikj.cc
地址:浙江省德清县阜溪街道秋丰路176号
什么是好的开放式厨房设计?
发布日期:2016-08-06 来源:金年会app 作者:广州厨房设备公司

要弄明白这个问题,我想还先弄明白开放式厨房到底在开放什么?
从欧美的发展来看,早期的厨房有烟雾和火灾的隐患,被安排在地下室或房子的背后(离起居室越远越好),基本上由仆人或主妇来完成烹饪。到了 20 世纪初期,由于仆役制度日渐没落和工厂的崛起,女性有了更多的职业选择,能够耗费在厨房的精力和时间大大缩减。于是,高效的操作流程与科学的厨房规划改变了厨房的样貌,厨房变成更加宽敞、有效率的地方。
仆人与主妇需要耗费大量的时间精力在厨房中▼

后来,由于厨房电器的发展和普及,电饭煲和电冰箱等电气化和燃气化的厨房设备取代了传统明火,厨房从房子的角落中解放出来,登堂入室和起居室并在一起。同时厨房的面积也越来越大,其作用从单纯的烹饪变成了家庭的展示橱窗,最新的电气设备成为身份和地位的象征。
第一个现代化标准厨房——法兰克福厨房▼

现代厨房的发展历程可以说是一部女性劳动力的解放史。开放式厨房不仅代表设备的革新,也是女性地位和家庭生活方式的革新。现在的欧美厨房,不仅是饭厅,还是小孩玩耍做功课的地方,更是整个家庭生活的重心,兼具了社交、聚会的功能。
开放式厨房让烹饪成为家人交流的一种方式▼

放到中国现在的厨房来说,认为厨房只是拿来炒菜、洗碗的观念已经过时了。“中国人只适合封闭式厨房”这种单纯以烹饪手法得出的结论是非常片面的。那么如何将现代开放式厨房的理念与中国的烹饪方式相结合呢?今天与大家分享两个小撇步,只需在细节上花点心思就能拥有一个不怕油烟的开放式厨房,快来看看吧~
中西厨房的精细划分
我们对厨房的烹饪方式列一个清单,就会发现,原来我们不知不觉已经接受了这么多的现代化厨具!
烹饪食物与器材不完全统计▼

从上表的不完全统计中可以看到,油烟产生较多的原因主要来自燃气灶的使用,并且主要集中在正餐时段。也就是说,中午和傍晚(对于上班族来说可能只是傍晚)厨房的油烟最多。在这种情况下,为了一天的两餐饭而放弃开放式厨房带来的巨大可能性,是不是有点可惜?
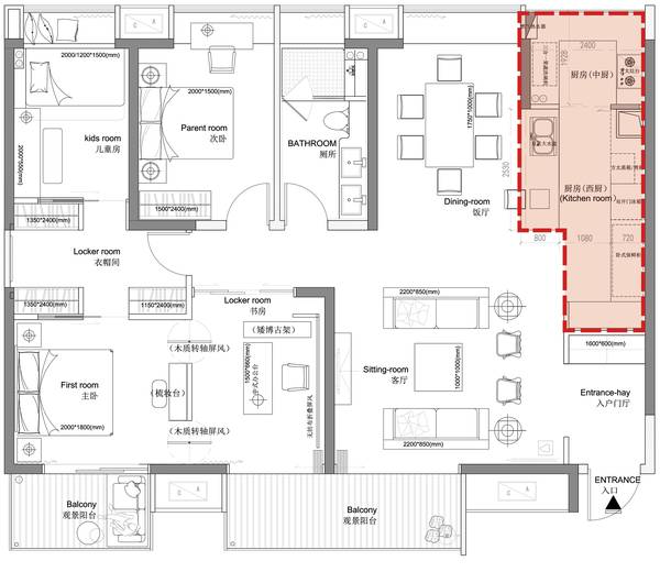
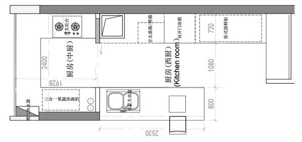
既然燃气灶是油烟的罪魁祸首,那么将它单独隔离开不就完美了吗?!中厨与西厨分开的原理就来自于此。下面分享一个住宅,房子的主人在经营一个面包品牌,对西式的烹饪场景和精美的厨房用具非常向往。并且刚生完小孩,需要父母的帮助来一起照顾宝宝的成长。考虑到长辈的饮食习惯,我们将中式料理所需的燃气灶放进靠内的中厨,并尽量压缩其面积 。再把主人工作所需的烤箱、蒸箱等电子厨房设备展示在外,符合这个家庭的日常饮食需求,也能很好地体现主人的工作性质。
传统 3 代之家,将中厨分隔满足日常饮食与工作的需要(design by 草三冉 CSR)▼

压缩中厨面积,将其余设备拉出,精美的现代化器材作为家庭的橱窗展示▼

总的来说,根据烹饪的类别科学地划分厨房区域,会是现代中式厨房的一个发展方向。
餐厨一体的开放式
随着我们饮食的多元化,厨房的设备越来越多,相对地,厨房面积也越来越大。然而,我们的住宅可是越变越小啊!这个时候,开放式厨房可以避免更多住宅面积被厨房“吃”掉,你所需要的只是一道门,在必要的时候关上,就可阻挡油烟的侵蚀。是不是棒棒哒?
下面是为一对年轻的 90 后夫妇设计的婚房。这对年轻人经常会在家中下厨招待友人,餐厅成为开 party、聚会交流的重要场所,餐厨房合一的做法能在料理的过程中更好地促进主人与客人的交流。餐厅与客厅之间用推拉门隔离,平常的状态下保持通透,能有效增大空间的视觉感受。烹饪时关上推拉门,产生的油烟就不会蔓延到客厅。并且在客厅开空调时,关上餐厅门还能节约用电量。
以年轻人为主的家居环境中,餐厅厨房作为社交聚会的频率较高(design by 草三冉 CSR)▼

一扇推拉门,即可完美阻隔油烟与冷气的扩散(by 台湾设计师俞佳宏)▼

用地板材质分隔餐厅与客厅的空间,天花板上有推拉门的轨迹(by 台湾设计师俞佳宏)▼

厨房不仅是烹饪与收纳的空间,还涵盖了娱乐休闲、学习、社交聚会等多种功能。现代厨房从粗糙的明火到精细的电器,从封闭性到开放,经历了漫长的历史与变革。开放式厨房,开放的不止简单的空间,还有多元化的生活方式与更先进的设备技术。当然更重要的,是拥有更开放的心态去辩证地看待问题,让现代厨房以更加开放与自由的姿态发展。

金年会app——商用厨房设备整体解决方案专家

关注微信公众号
快速咨询厨房设备整体解决方案
网站:zhongyikj.cc
部分图文来源网络,如有侵权请联系删除!
本文标题:什么是好的开放式厨房设计?
转载请注明出处:金年会app http://zhongyikj.cc

三门海鲜蒸柜(电)
双头双尾小炒炉(电)
不锈钢平板送料车
16格2/1宴会活动冷藏车



